
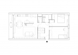
Zadání pro úpravu panelákového bytu ve Vysočanech bylo jednoduché – dvě ložnice, koupelna s vanou, samostatná toaleta, předsíň, kde bude více úložného prostoru, větší kuchyně částečně propojená s obývacím prostorem a velká knihovna. Dispoziční změny byli jemné, ale podstatně ovlivnili světlost a pohyb v hlavním prostoru bytu.
Naproti linii kuchyně je jako protiváha linie velké knihovny. Mezi nimi zůstal fragment panelu – stěny, který zajišťuje jakési záda obou prostor a tím zůstávají částečně oddělené, ale přesto propojené. Polyuretanová stěrka díky svým vlastnostem ( malé tl. a industriálnímu vzhledu ) byla zvolena do celého bytu. Jeho další materiály – vyzdívka z natřeného Ytongu v předsíni, jednoduché bílé obklady v koupelně a na toaletě nebo natřené OSB desky na všech truhlářských prvcích propojují v bytě jednu myšlenku odhalených a surových materiálů v jeden koncept.
REALIZACE
2015 - 2016
FOTOGRAFIE
MgA. Veronika Raffajová











Další projekty