
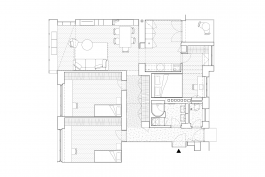
Hlavním zadáním rekonstrukce bylo, zvýšit všechny dveře a vymyslet polohu ložnice tak, aby zůstali v rámci dispozice dva stejně velké dětské pokoje. Po prvních schůzkách s klienty bylo jasné, že změna dispozice bude větší než si ze začátku představovali. Klienti po několika předložených variantách došli k názoru, že oni sami nepotřebují standardní ložnici, že jim v podstatě stačí nika na spaní plus prostor se šatní skříní. V nové ložnici je i rozkládací stůl s plytkou skříní na látky. Pod vysokou postelí je další úložný prostor, třeba právě na šicí stroj. Díky rozhodnutí o minimální ložnici se dispozice zjednodušila a zpřehlednila. Kuchyně je v podstatě samostatná místnost, ale s velkým otevřením do obytné části, kde je umístěn jídelní stůl. Ten má část sezení v nice, která je součástí velké knihovny. Knihovna má za posuvnými dvířky schovanou menší televizi. Dětské pokoje jsou zařízeny velmi střídmě a jednoduše. Oba pokoje jsou stejné, jen s tím rozdílem, že jeden má zelené dveře. Mezi koupelnou a toaletou je jednoduché zasklení. Skrz něj vykukuje na neprašovskou červenou barvu natřená litinová trubka od kanalizace.
Důležitým tématem rekonstrukce byl nábytek, který se do nového prostoru vkládal. Jeho barva a materiálová různost - tři materiály a tedy i tři barvy – bělená překližka, které je vzhledem k původní parketové podlaze v bytě nejvíce, tmavá dýha (v kuchyni dubová a v dětských pokojích kvůli posteli z ořechové dýhy) a laminátová zelená šatní skříň, která v prostoru spolu se zeleným nátěrem vytvořila prstenec – barevný průchod, který se stal dominantním prvkem. Nová dlažba na chodbě a v koupelně s toaletou pak také reagují na výběr materiálu nábytků. Ke světle šedým velkoformátovým dlaždicím patří bělená překližka a zelené lamino doplňuje antracitová dlažba ve stejném dekoru jako světle šedá. Celý prostor bytu a koncept barev vyniká zaměříme-li se na průhledy z jednotlivých místností.
SPOLUPRÁCE
Ing. arch. Dominika Galandová
REALIZACE
2021
FOTOGRAFIE
MgA. Veronika Raffajová






















Další projekty