
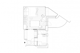
Zadáním interiérových úprav bylo spojit několik funkcí v jenom prostoru. Spaní – stolování – šatnu – pracovní prostor a obývací prostor s tv. Samotný pokoj je čtvercového tvaru, kdy v jednom rohu je jakýsi apendix – výklenek s oknem, který navazuje na terasu. Podlaha měla být zachována. Je z dubových vlysů přírodní barvy. V prostoru došlo ke stavebnímu zásahu, který více propojil kuchyni a tento multifunkční prostor.
Už od začátku bylo jasné, že do tak malého prostoru nepůjde vyřešit tolik funkcí typovými nábytky. Ve výklenku se nám velmi líbil nápad válecího ležení. Je to asymetrický prostor, kde není možná standardní postel. Ale díky přítomnosti okna se nabízí, aby byl výklenek využit atypově. Od výklenku, kde je vestavba válecí postele pomyslně podél stěny pokračuje knihovna/police s TV a dále podium, kde je umístěna sedačka. Televize je otočná. Tedy se lze na ni dívat z výklenku a i ze sedačky. Pod podiem je schovaná postel. Ta se vysouvá směrem k výklenku. Díky tomu nepřekáží ve volném prostoru. Druhá funkční linie vestavných nábytku jde směrem ke vstupu z kuchyně. Tam je umístěna šatna s úložnými prostory a pracovní místo. Jídelní stůl je vyklápěcí a je umístěný u okna s výhledem do vnitrobloku.
SPOLUPRÁCE
Ing. arch. Dominika Galandová
REALIZACE
2021-2022
FOTOGRAFIE
MgA. Veronika Raffajová














Další projekty