
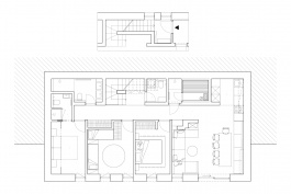
Apartmán se nachází v novostavbě v Jizerských horách. Byt je v přízemí domu, tedy je přímo fyzicky i vizuálně propojen s okolní krajinou. Do apartmánu se vstupuje z druhého patra malou předsíní, která navazuje na dvouramenné schodiště. Tato cesta přes předsíň a sestoupením po schodech do nižšího patra přímo do nitra bytu lze chápat jako jakýsi filtr. Ocitnete se v dlouhé chodbě, ze které vedou dveře do jednotlivých ložnic a koupelny nebo samostatné toalety. Chodba také odděluje byt na dvě funkční části – technické zázemí (koupelny, toaleta, sauna, kuchyně) a obytné prostory (ložnice a obývací prostor s krbem a jídelním koutem). Průhled chodbou na část vykukující kuchyně Vás navede do hlavního prostoru, kde se soustředí celé dění kolem krbového tělesa. To také vyčleňuje pohodlné sezení do U, které je vetknuto mezi krb a stěny. Naproti němu je umístěn jídelní stůl s lavicí, která je pokračováním linie kuchyňské linky.
Hlavní koncept návrhu tvoří dva opačné a doplňující se principy. Nadčasová a velmi odolná podlaha, která byla vzhledem k početné rodině a uvažovanému provozu nutností, ta je na podlaze v celém bytě. Druhý princip vychází z historického charakteru interiérů chalup a venkovských domů. Materiálové řešení a zpracování podhledů v hlavním prostoru, kuchyně, vestavných skříní, krbového tělesa se odkazuje na tradiční řešení, které ovšem zachovává moderní nároky na estetiku nebo na údržbu.
SPOLUPRÁCE
Ing. arch. Petra Ciencialová
REALIZACE
2020-2021
FOTOGRAFIE
MgA. Veronika Raffajová


















Další projekty