
Přáním klientů bylo vytvořit příjemné bydlení pro rodinu v původním libeňském řadovém domu z 30 let. Zadáním úprav bylo minimalisticky vstoupit do objektu s nezbytně nutnými úpravami, při zachování jeho původních hodnotných prvků – zděné schodiště se zábradlím, terazzové a modřínové prkenné podlahy.
K hlavním stavebním úpravám došlo zejména v interiéru a to odstraněním původních příček, tak aby vznikla dispozice, která bude odrážet potřeby rodiny. Exteriéry a členění fasády prošlo pouze drobnými úpravami, výměnou oken, novými omítkami a dřevěnou terasou.
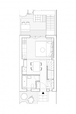
Odstranění původních příček dovolilo v prvním podlaží vytvořit velkorysejší obytný prostor s kuchyní, který navazuje vizuálně na zahradu s terasou velkým francouzským oknem. Zádveří domu se schodištěm je volně propojeno s hlavním pobytovým prostorem, ten působí díky tomu moderněji a velkoryseji. Jediný odděleným prostorem se stala hlavní koupelna. Reminiscenci historického členění jsou terazzové a prkenné podlahy, které spolu s novou starorůžovou PU stěrkou vytvářejí kompaktní mozaiku materiálů. Kuchyňská sestava je tvořena kombinací typových spodních dílů a na míru vytvořených do zelena mořených horních skříněk.
V druhém podlaží bylo cílem vytvořit minimální ložnici rodičů s vestavnými šatními skříněmi a větší dětský pokoj. Druhé patro je doplněno samostatnou toaletou.
Celková koncepce úprav objektu byla tvořena s možností budoucí nástávby třetího podlaží, který by rozšířil užitnou plochu domu a vytvořil volnočasové a pracovní zázemí s koupelnou či alternativně další ložnicí.
SPOLUPRÁCE
Ing. arch. Petra Ciencialová
REALIZACE
2018-2020
FOTOGRAFIE
MgA. Veronika Raffajová













Další projekty